
岩美町では、町内に所在する「空き家」の流動化を促進することにより、地域の空洞化を抑制し、良質な住環境の再整備と町内への定住(5年以上連続して町内に住所を有する意思がある事)を希望される方などへの住宅供給の橋渡しとして『空き家活用情報システム』(「空き家バンク」)を運営しています。 (岩美町空き家活用情報システム事業実施要項)
- 空き家バンクの利用を希望される方は事前登録が必要ですので、岩美町役場へ電話連絡をお願いいたします。
- 役場へお越しになる際は、事前連絡をお願いいたします。事前連絡がない場合は対応できないことがあります。
賃貸や売却を希望する空き家をお持ちの方から物件情報を提供・登録していただき、空き家の利用を希望される方にその情報を提供します。
【専門家による空き家の総合相談窓口について】
査定、相続問題、リフォーム、解体、処分、契約手続きなど、空き家に関するご相談のお問い合わせ窓口があります(とっとり空き家利活用推進協議会)。
とっとり空き家利活用推進協議会は、宅建協会や建築士会など、県内の専門団体によって構成されています。「空き家の事で困っているけど、誰にどう問い合わせたらいいかわからない。」といった場合には、下記リンク先の電話番号にお問い合わせください。
とっとり空き家利活用推進協議会<外部リンク>
【空き家所有者の方へ】・・・空き家の登録を希望する方
1. 登録申込
情報登録申込書(様式第1号)を役場企画財政課へ提出してください。
2. 台帳へ登録
役場担当者と現地確認後、登録台帳(様式第2号)に登録します。
3. 運用
登録完了後、物件情報をホームページ等で提供します。
空き家利用希望者からの申込があった場合、担当者より連絡いたします。
4. 登録情報の抹消
登録から3ヶ年度が経過したとき又は登録が適当でないと認めたときは、登録を抹消します。
※なお、継続して登録を希望される場合は、情報登録申込書(様式第1号)により再度申し込みを行ってください。
■各種様式(PDFファイル)
情報登録申込書(様式第1号)
【移住希望者の方へ】・・・空き家の利用を希望する方
1. 利用希望者登録
登録台帳の閲覧を希望する場合は、下記の「申込書」を提出するか「とっとり電子申請サービス」で申請してください。
■申込書(各種様式)
利用希望者登録申込書(様式第3号)(Excelファイル)
利用希望者登録申込書(様式第3号)(PDFファイル)
■電子申請
「とっとり電子申請サービス(外部リンク)」でパソコンやスマートフォンからも申請が可能です。
(外部リンク)
・操作マニュアル
2. 希望の物件があった場合
ご希望の物件があり、内覧をご希望される場合は空き家所有者へ連絡を取ります。
3. 賃貸、売買契約に向けて
空き家所有者と現地確認後、契約に向けた交渉は、当事者同士で行っていただきます。
空き家バンクのご利用に当たっては、以下の条件に同意していただきます。
■空き家バンクに登録された物件は、ほとんどが所有者の御厚意で登録いただいているものです。賃貸借用に建てられた物件とは事情が異なりますので、「お借りする」という気持ちを持ってください。
■原則として、「空き家」への入居後は、居住する地域の自治組織(自治会、町内会など)への加入が必須条件となります。
■町では、売買または賃貸契約の仲介を行いません。また、当事者同士の交渉に介入することはありません。
■岩美町個人情報保護条例(平成15年岩美町条例第1号)の規定により、申込された個人情報は、本事業の目的以外に利用しません。
空き家物件情報
*画像をクリックすると拡大した平面図をご覧いただけます。
|
物件ナンバー
|
区分
|
構造
築年数
|
土地面積
建物面積
|
|
No.15 岩井地区

|
賃貸
売買
|
木造瓦葺
建築年 昭和27年
|
約180.69㎡
約39.66㎡
|
|
物件ナンバー
|
区分
|
構造
築年数
|
土地面積
建物面積
|
|
No.29 小田地区

|
売買
|
木造瓦葺2階建
建築年 昭和26年
|
約570.23㎡
約192.77㎡
|
|
物件ナンバー
|
区分
|
構造
築年数
|
土地面積
建物面積
|
|
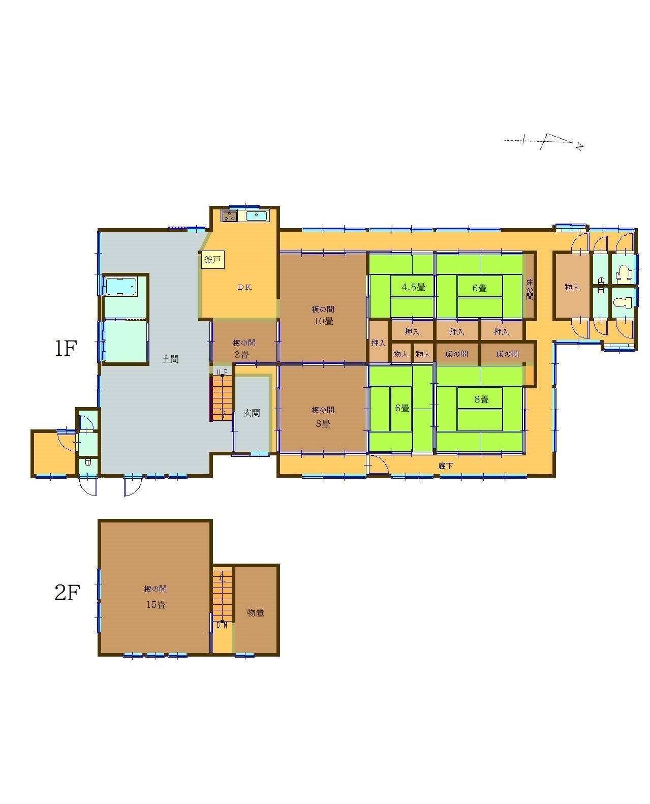
No.34 網代地区 

詳細情報
|
賃貸
売買
|
木造瓦葺2階建
建築年 昭和57年
|
92.02㎡
122.74㎡
|
|
物件ナンバー
|
区分
|
構造
築年数
|
土地面積
建物面積
|
|
No.45 田後地区

|
賃貸
|
木造瓦葺2階建
建築年 昭和50年
|
約93.88㎡
約111.51㎡
|
|
物件ナンバー
|
区分
|
構造
築年数
|
土地面積
建物面積
|
|
No.87 田後地区

|
賃貸
売買
|
木造瓦葺2階建
建築年 昭和39年
|
52.89㎡
81.32㎡
|
|
物件ナンバー
|
区分
|
構造
築年数
|
土地面積
建物面積
|
|
No.107 岩井地区

詳細情報
|
売買 |
木造瓦葺2階建
建築年 平成元年
|
約574.87平方メートル
約210.92平方メートル
|
|
物件ナンバー
|
区分
|
造
築年数
|
土地面積
建物面積
|
|
No.114 大岩地区

詳細情報
|
売買
|
木造瓦葺2階建
建築年 昭和13年
|
約797.83㎡
約233.03㎡
|
|
物件ナンバー
|
区分
|
構造
築年数
|
土地面積
建物面積
|
|
No.115 大岩地区

|
売買
|
木造瓦・亜鉛メッキ鋼板葺2階建
建築年 昭和49年
|
約139.39㎡
約170.28㎡
|
|
物件ナンバー
|
区分
|
構造
築年数
|
土地面積
建物面積
|
|
No.116 大岩地区

詳細情報
|
売買
|
木造瓦葺2階建
建築年 昭和53年
|
約556.82㎡
約166.42㎡
|
|
物件ナンバー
|
区分
|
構造
築年数
|
土地面積
建物面積
|
|
No.117 網代地区

詳細情報
|
売買
|
木造瓦葺2階建
建築年 昭和49年
|
約42.97㎡
約90.62㎡
|
|
物件ナンバー
|
区分
|
構造
築年数
|
土地面積
建物面積
|
|
No.131 岩井地区

詳細情報
|
売買
賃貸
|
木造瓦葺2階建
建築年 昭和24年頃
|
約97.20㎡
約101.23㎡
|
|
物件ナンバー
|
区分
|
構造
築年数
|
土地面積
建物面積
|
|
No.134 大岩地区

詳細情報
|
売買
|
木造瓦葺2階建
建築年 昭和24年頃
|
約293.11㎡
約102.01㎡
|
|
物件ナンバー
|
区分
|
構造
築年数
|
土地面積
建物面積
|
|
No.137 網代地区

詳細情報
|
売買
|
木造瓦葺2階建
建築年 昭和50年
|
約108.16㎡
約123.30㎡
|
|
物件ナンバー
|
区分
|
構造
築年数
|
土地面積
建物面積
|
|
No.138 大岩地区

詳細情報
|
売買
|
木造瓦葺2階建
建築年 昭和46年
|
約673.66㎡
約158.58㎡
|
|
物件ナンバー
|
区分
|
構造
築年数
|
土地面積
建物面積
|
|
No.139 浦富地区

詳細情報
|
売買
|
木造ストレート葺
2階建
建築年 平成1年
|
約353.67㎡
約125.00㎡
|
|
物件ナンバー
|
区分
|
構造
築年数
|
土地面積
建物面積
|
|
No.144 田後地区

詳細情報
|
売買
賃貸
|
木造瓦葺2階建
建築年 昭和54年
|
166.88㎡
110.02㎡
|
|
物件ナンバー
|
区分
|
構造
築年数
|
土地面積
建物面積
|
|
No.145 岩井地区

|
売買
|
木造瓦葺2階建
建築年 昭和36年頃
|
659.67㎡
272.11㎡
|
|
物件ナンバー
|
区分
|
構造
築年数
|
土地面積
建物面積
|
|
No.146 東地区
|
売買
|
木造瓦葺2階建
建築年不明
|
226.87㎡
118.79㎡
|
|
物件ナンバー
|
区分
|
構造
築年数
|
土地面積
建物面積
|
|
No.148 本庄地区

詳細情報
|
売買
|
木造瓦・亜鉛メッキ鋼板葺
2階建
建築年 昭和53年
|
約553.88㎡
約142.50㎡
|
|
物件ナンバー
|
区分
|
構造
築年数
|
土地面積
建物面積
|
|
No.149 本庄地区
|
売買
|
木造瓦葺2階建
建築年 昭和45年
|
約539.06㎡
約147.69㎡
|
|
物件ナンバー
|
区分
|
構造
築年数
|
土地面積
建物面積
|
|
No.150 田後地区

詳細情報
|
売買
|
木造瓦葺2階建
建築年 昭和44年
|
約82.86㎡
約136.98㎡
|
|
物件ナンバー
|
区分
|
構造
築年数
|
土地面積
建物面積
|
|
No.151 岩井地区
|
売買
|
木造瓦葺2階建
建築年 昭和44年
|
約804.20㎡
約239.76㎡
|
|
物件ナンバー
|
区分
|
構造
築年数
|
土地面積
建物面積
|
|
No.152 岩井地区

詳細情報
|
売買
|
木造瓦葺2階建
建築年 不明
|
約428.01㎡
約164.06㎡
|
|
物件ナンバー
|
区分
|
構造
築年数
|
土地面積
建物面積
|
|
No.153 浦富地区
詳細情報
|
売買
|
木造瓦亜鉛メッキ鋼
板葺2階建
建築年 昭和50年
|
約184.59㎡
約102.46㎡
|
|
物件ナンバー
|
区分
|
構造
築年数
|
土地面積
建物面積
|
|
No.154 蒲生地区

詳細情報 |
売買
|
木造亜鉛メッキ鋼板葺
2階建
建築年 昭和49年
|
約330.51㎡
約99.73㎡
|
|
物件ナンバー
|
区分
|
構造
築年数
|
土地面積
建物面積
|
|
No.155 浦富地区

詳細情報
|
売買
|
木造瓦・亜鉛メッキ
鋼板葺2階建
建築年 昭和46年
|
463.28㎡
134.12㎡
|
|
物件ナンバー
|
区分
|
構造
築年数
|
土地面積
建物面積
|
|
No.156 田後地区 

|
賃貸
|
木造瓦・亜鉛メッキ
鋼板葺2階建
建築年 昭和44年
|
約276.03㎡
約100.84㎡
|
|
物件ナンバー
|
区分
|
構造
築年数
|
土地面積
建物面積
|
|
No.157 田後地区 

詳細情報
|
売買
|
木造瓦葺地下1階付2階建
建築年 昭和58年
|
約80.42㎡
約110.79㎡
|
|
物件ナンバー
|
区分
|
構造
築年数
|
土地面積
建物面積
|
|
No.158 浦富地区 
詳細情報
|
売買
|
木造瓦葺2階建
建築年 昭和50年頃
|
約252.46㎡
約240.29㎡
|
各地区の概要、特徴
○東地区
MAPPLE海水浴場ランキング全国1位に選ばれた「東浜海水浴場」が広がる人気のエリア。
○
浦富地区
浦富海岸、牧谷海水浴場などを有し、公共施設、店舗などが集まる岩美町の中心部。
○田後地区
岩美町の基幹産業である漁業を支える「田後漁港」を有する漁村エリア。
○網代地区
岩美町の基幹産業である漁業を支える「網代漁港」を有する漁村エリア。
○大岩地区
教育施設なども近く、静かな住宅地の広がるエリア。
○本庄地区
道の駅「きなんせ岩美」を有し、岩美町中心部にも近い便利なエリア。
○小田地区
田畑と山々の広がる山村エリア。温泉施設、キャンプ施設もあり。
○岩井地区
1200年の歴史を誇る山陰最古級の温泉「岩井温泉」を有するエリア。
○蒲生地区
日本の棚田百選に選ばれた「横尾棚田」を有する山村エリア。
UIJターン支援制度の紹介 空き家活用情報システムを利用しての移住を支援するための補助制度を設けています。制度名をクリックして補助金交付要綱をご覧ください。
移住者への助成制度
空き家活用情報システムを利用し、一定の要件を満たす移住者が住宅を改修する場合、その費用の2分の1を助成します。(上限金額:県外からの移住者 200万円、県内からの移住者 100万円)
移住先自治会への助成制度
移住者が地域にとけ込めるよう、移住先の自治会がフォローする活動に対する交付金です。(自治会に対し、1件5万円)
空き家所有者への助成制度
岩美町内の空き家を、空き家活用情報システムへ登録していただいた方に、当該空き家にかかる固定資産税相当額の2分の1を交付します。
空き家への入居者が決定した場合、空き家所有者へ当該物件の家財道具等の整理費を助成します。(上限金額:40万円)
Uターン若者世代への奨励金制度
申請する年度末において39歳以下であり、一定の要件を満たす若者世代のUターン世帯等に奨励金を交付します。(世帯:20万円、単身者:10万円)